ОГКСф Опоры граненые конические складывающиеся




Область применения: |
|
Назначение: |
|
Высота: | 6-20 м |
Вес: | 75-807 кг |
Верхний диаметр: | 75-150 мм |
Нижний диаметр: | 140-370 мм |
Артикул производителя: | ОГКСф |
Производитель «Пересвет», Россия
как выбрать опору?
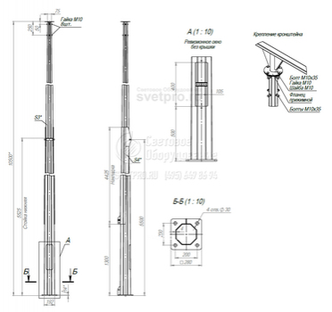
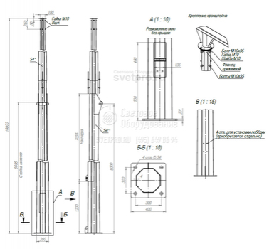
ГАБАРИТНЫЕ РАЗМЕРЫ
Таблица кодов заказа
Тип | Н, м | D1, мм | D2, мм | А/B, мм | d, мм | n, шт | b, мм | Посадочное место кронштейна | Масса, кг | Наветренная площадь оборудования, м2, при ветровом районе | Нагрузки на фундамент | ||||||||
---|---|---|---|---|---|---|---|---|---|---|---|---|---|---|---|---|---|---|---|
I | II | III | IV | V | VI | VII | M, т*м | N, т | Q, т | ||||||||||
ОГКСф-6 | 6 | 140 | 75 | 200/150 | 25 | 4 | 75 | К80 | 75 | 0,96 | 0,63 | 0,4 | 0,22 | 0,09 | - | - | 0,9 | 0,12 | 0,23 |
ОГКСф-7 | 7 | 152 | 75 | 200/150 | 25 | 4 | 75 | К80 | 88 | 0,96 | 0,63 | 0,4 | 0,22 | 0,09 | - | - | 0,9 | 0,12 | 0,23 |
ОГКСф-8 | 8 | 165 | 75 | 240/180 | 25 | 4 | 75 | К80 | 146 | 1 | 0,62 | 0,37 | 0,17 | - | - | - | 1,3 | 0,17 | 0,29 |
ОГКСф-9 | 9 | 180 | 75 | 240/180 | 25 | 4 | 75 | К80 | 159 | 1 | 0,62 | 0,37 | 0,17 | - | - | - | 1,3 | 0,17 | 0,29 |
ОГКСф-10 | 10 | 192 | 75 | 280/200 | 30 | 4 | 100 | К80 | 185 | 1,02 | 0,61 | 0,33 | 0,11 | - | - | - | 1,9 | 0,23 | 0,37 |
ОГКСф-10(2) | 10 | 225 | 100 | 320/230 | 34 | 4 | 120 | К110 | 288 | 1,32 | 0,76 | 0,38 | 0,09 | - | - | - | 2,6 | 0,44 | 0,47 |
ОГКСф-10,5 | 10,5 | 192 | 75 | 320/230 | 34 | 4 | 120 | К110 | 194 | 1,32 | 0,76 | 0,38 | 0,09 | - | - | - | 2,6 | 0,44 | 0,47 |
ОГКСф-10,5(2) | 10,5 | 225 | 100 | 280/200 | 30 | 4 | 115 | К80 | 298 | 0,76 | 0,38 | 0,11 | - | - | - | - | 2,2 | 0,31 | 0,37 |
ОГКСф-12 | 12 | 210 | 75 | 280/200 | 30 | 4 | 115 | К80 | 260 | 0,76 | 0,38 | 0,11 | - | - | - | - | 2,2 | 0,31 | 0,37 |
ОГКСф-12(2) | 12 | 275 | 150 | 400/300 | 34 | 4 | 159 | К165 | 449 | 2,06 | 1,22 | 0,64 | 0,2 | - | - | - | 4,7 | 0,61 | 0,73 |
ОГКСф-14 | 14 | 253 | 100 | 400/300 | 34 | 4 | 125 | К110 | 404 | 0,96 | 0,45 | 0,1 | - | - | - | - | 3,4 | 0,44 | 0,46 |
ОГКСф-14(2) | 14 | 315 | 150 | 495/400 | 34 | 4 | 159 | К165 | 614 | 2,22 | 1,27 | 0,63 | 0,13 | - | - | - | 6,3 | 0,75 | 0,9 |
ОГКСф-16 | 16 | 280 | 100 | 400/300 | 34 | 4 | 135 | К110 | 484 | 0,81 | 0,28 | - | - | - | - | - | 4,2 | 0,52 | 0,55 |
ОГКСф-16(2) | 16 | 315 | 150 | 495/400 | 34 | 4 | 159 | К165 | 688 | 1,4 | 0,61 | 0,06 | - | - | - | - | 6,3 | 0,83 | 0,73 |
ОГКСф-20 | 20 | 370 | 130 | 650/550 | 34 | 8 | 219 | К165 | 807 | 1 | 0,23 | - | - | - | - | - | 7,7 | 0,91 | 0,77 |
H - высота
A/B - размер фланца
d - диаметр отверстий
n - кол-во отверстий
b - ширина люка
M - изгибающий момент
Q - перерезывающая сила
N - вертикальная нагрузка
ц - цинк
по - порошковая окраска
ОПИСАНИЕ
Складывающиеся опоры освещения предназначены для установки осветительного оборудования с возможностью обслуживания с земли. В центральной части опоры расположен шарнирный узел, который позволяет сложить опору освещения, переместив верхнюю часть на уровень доступный для обслуживания с земли. Наличие только одного подвижного элемента и простота конструкции делает данный тип опор надежными и экономичными в использовании. Складывающиеся опоры подбираются исходя из наветренной площади и массы устанавливаемого оборудования.
При массе оборудования 5-15 кг или 35-45 кг (для усиления опор тип2) обслуживание возможно без применения дополнительных специальных средств (усилие для складывания опоры будет в диапазоне 5-15 кг).
При массе оборудования 15-30 кг или 45-60 кг соответственно, желательно применение блока (одинарного полиспаста) для уменьшения усилия при складывании опоры. Комплект с блоком заказывается отдельно и может использоваться один на несколько опор (усилие без блока в данном случае составит 15-30 кг и 5-15 кг при использовании блока).
При массе оборудования 60-80 кг для исполнения типа 2 желательно применение механизированного способа складывания с использованием механической лебедки. Комплект лебедки заказывается отдельно и может использоваться один на несколько опор.
Конструкция опоры
Подвод питания к опорам данного типа необходимо производить кабельной линией выполненной под землей. Для возможности ввода кабеля в опору в закладной детали фундамента выполняется сквозное отверстие. Складывающиеся опоры предназначены для восприятия нагрузок от климатических факторов и веса установленного оборудования.
Фотогалерея
Похожие товары

ОГК Опоры граненые конические

ОГС, ОГСп, ОГСГ, ОГУ Опоры граненые силовые

ОГКС Опоры граненые конические складывающиеся

ОГСКС Опоры граненые силовые контактной сети

ОКС Опоры круглые силовые

ОГКК Опоры квартальные граненые стальные бесфланцевые

ОТ Опоры трубчатые

ОГККЗ Опоры квартальные для подземной подводки питания (фланцевые)
Вы недавно смотрели
Статьи по теме
Чем отличаются опоры НФГ от конструкций для контактной сети электротранспорта

НФГ — это легкие опоры, которые выдерживают только вес световых приборов. Если нужно подвесить провода для работы трамваев и троллейбусов, используются опоры контактной сети.
Опоры линий электропередач

Опоры линий электропередач на базе ствола из листовой стали занимают значительно меньше места, чем традиционные решетчатые модели. Для их установки не нужно отводить большой участок земли.
Сравнение граненых, круглоконических и трубчатых опор

Производители стальных осветительных опор изготавливают несколько вариантов конструкций. Выбирать подходящий вариант нужно на основе требуемых характеристик изделий.
