ОКСТф-2,5-9 Опоры контактной сети трубчатые фланцевые


Область применения: |
|
Назначение: |
|
Высота: | 9 м |
Вес: | 811 кг |
Верхний диаметр: | 325 мм |
Нижний диаметр: | 426 мм |
Артикул производителя: | ОКСТф-2,5-9 |
Производитель «Пересвет», Россия
как выбрать опору?
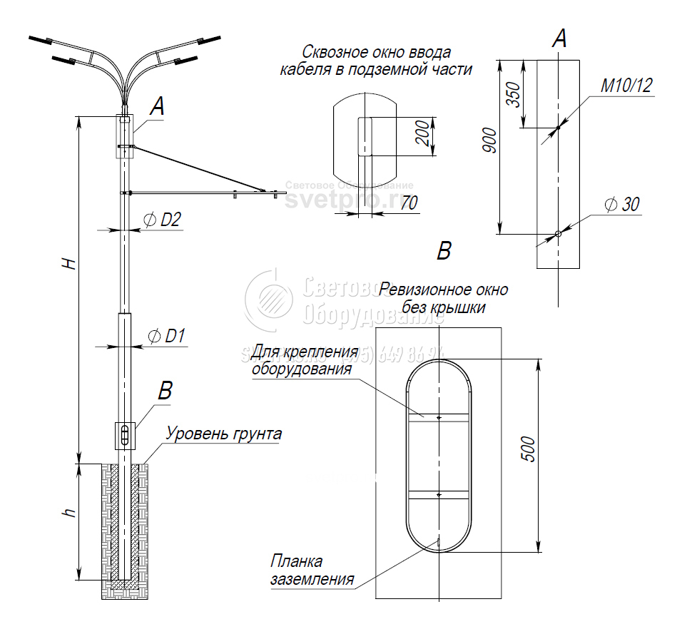
ГАБАРИТНЫЕ РАЗМЕРЫ
Таблица кодов заказа
Тип | Н, м | D1, мм | D2, мм | А/B, мм | d, мм | n, шт | Посадочное место кронштейна | Масса, кг |
---|---|---|---|---|---|---|---|---|
ОКСТф-2,5-9-01 | 9 | 426 | 325 | 660/545 | 46 | 10 | О285 | 811 |
ОКСТф-2,5-9-02 | 9 | 426 | 325 | 660/545 | 46 | 10 | О285 | 811 |
ОПИСАНИЕ
ОКСТф - опоры контактной сети трубчатые фланцевые совмещают в себе функцию поддерживающих устройств питающей линии контактной сети и элементов наружного освещения. В связи с этим опоры воспринимают большие нагрузки в сравнении с силовыми опорами, предназначенными исключительно для освещения, а также должны обладать большей жесткостью (отклонение под действием нагрузки не более 1/70 высоты опоры) для сохранения работоспособности контактной сети при различных климатических условиях. Трубчатые силовые опоры контактной сети изготавливаются двухсоставными с поперечным сварным стыком в центральной части стойки из стальных труб. В верхней части опоры выполнено отверстие для возможности ввода питающего кабеля к светильнику.
Фотогалерея
Похожие товары

ОГК Опоры граненые конические

ОГС, ОГСп, ОГСГ, ОГУ Опоры граненые силовые

ОГКС Опоры граненые конические складывающиеся

ОГСКС Опоры граненые силовые контактной сети

ОКС Опоры круглые силовые

ОГКК Опоры квартальные граненые стальные бесфланцевые

ОТ Опоры трубчатые

ОГККЗ Опоры квартальные для подземной подводки питания (фланцевые)
Вы недавно смотрели
Статьи по теме
Использование силовых опор для установки коммутационных устройств

Силовые трубчатые опоры легко адаптируются для монтажа коммутационного оборудования. Шкафы с коммутаторами крепятся на ствол с помощью накладных кронштейнов.
Конические опоры для освещения городских улиц

Конические опоры наружного освещения делаются из листовой стали, их корпус имеет форму конуса. За счет этого центр тяжести смещается вниз и опора становится более стабильной.
Несиловые опоры для освещения складов, логистических центров

Несиловые опоры часто используются для освещения логистических центров и складов благодаря своей универсальности, доступной стоимости, простоте установки, долговечности и прочности.
