ОКГСф-1,5-9-01 Опоры контактной сети граненые фланцевые

Область применения: |
|
Назначение: |
|
Высота: | 9 м |
Вес: | 568 кг |
Верхний диаметр: | 304 мм |
Нижний диаметр: | 422 мм |
Артикул производителя: | ОКГСф-1,5-9-01 |
Производитель «Пересвет», Россия
как выбрать опору?
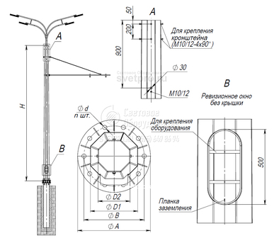
ГАБАРИТНЫЕ РАЗМЕРЫ
Таблица кодов заказа
Тип | Н, м | D1, мм | D2, мм | А/B, мм | d, мм | n, шт | Посадочное место кронштейна | Масса, кг | Рекомендуемый фундаментный блок |
---|---|---|---|---|---|---|---|---|---|
ОКГСф-1,5-9-01 | 9 | 422 | 304 | 630/530 | 34 | 12 | К320 | 568 | ЗДФ-0,426-3 (Д630-530-12х34) |
H - высота
A/B - размер фланца
d - диаметр отверстий
n - кол-во отверстий
01 - воздушный подвод питающего кабеля
02 - подземный подвод питающего кабеля
ОПИСАНИЕ
Фотогалерея
Похожие товары

ОГК Опоры граненые конические

ОГС, ОГСп, ОГСГ, ОГУ Опоры граненые силовые

ОГКС Опоры граненые конические складывающиеся

ОГСКС Опоры граненые силовые контактной сети

ОКС Опоры круглые силовые

ОГКК Опоры квартальные граненые стальные бесфланцевые

ОТ Опоры трубчатые

ОГККЗ Опоры квартальные для подземной подводки питания (фланцевые)
Вы недавно смотрели
Статьи по теме
Использование силовых опор для подвески СИП

Силовые опоры специально разработаны для подвески воздушного самонесущего изолированного провода. Они выдерживают нагрузку при размещении кабеля под любым углом к опоре.
Преимущества опор с граненым корпусом в виде конуса

Опоры со стволом в форме многогранника наиболее популярны у инженеров. Основными преимуществами являются низкая стоимость, маленький вес, высокая прочность и устойчивость.
Опоры освещения для АЗС

Выбор опор освещения для автозаправочных станций – сложный процесс, так как они должны обеспечивать качественное освещение достаточно большого пространства с учетом противопожарных норм для объектов повышенной опасности, иметь привлекательный дизайн и длительный срок службы.
